В поисках баланса между комфортом городской квартиры и простором загородного жилья? Представляем обзор функционального проекта каркасного дома площадью 108 м². Мы проанализировали архитектурный стиль, конструктивные решения, схему утепления и планировку, чтобы понять, почему этот дом станет отличным выбором для семьи из 4 человек в Московской области.

Архитектурный облик: сдержанность и стиль
Визуализация проекта демонстрирует современный подход к загородной архитектуре, тяготеющий к скандинавскому минимализму или стилю «барнхаус» в его классическом прочтении. Дом имеет простую геометрию прямоугольника (пятно застройки 8х15 метров), что является экономически выгодным решением при строительстве и эксплуатации. Темная отделка фасада, имитирующая брус или планкен, в сочетании с контрастными наличниками и элементами террасы придает строению благородный и основательный вид.
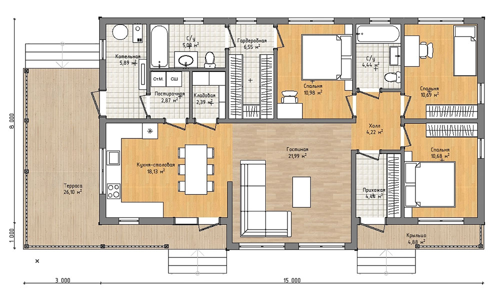
Особое внимание привлекает просторная крытая терраса площадью 26,1 м². Это не просто крыльцо, а полноценная лаунж-зона, где легко разместится обеденная группа для летних завтраков. Кровля террасы является продолжением основной крыши, что создает целостный архитектурный ансамбль и защищает входную группу и окна от осадков и прямого палящего солнца.
Планировочные решения и эргономика
Внутреннее пространство дома общей площадью 108,4 м² организовано с безупречной логикой, разделяя приватную и общественную зоны. Сердцем дома является объединенное пространство кухни-столовой (18,13 м²) и гостиной (21,99 м²). Отсутствие глухих перегородок здесь наполняет дом воздухом, а грамотное зонирование позволяет семье проводить время вместе, не мешая друг другу.

Приватная зона включает:
- Три спальни: Комнаты площадью 10,98 м², 10,69 м² и 10,68 м² имеют правильную геометрическую форму. Это оптимальный размер для размещения двуспальной кровати и систем хранения, без ощущения тесноты.
- Санитарные узлы: Проектом предусмотрено два санузла (5,08 м² и 4,44 м²), что является обязательным стандартом комфорта для семьи из 4 человек. Один из них оборудован полноценной ванной, второй выполняет функцию гостевого или детского санузла.
Вспомогательные помещения также продуманы до мелочей. Котельная (5,89 м²) имеет отдельный вход с улицы (с террасы) и смежна с постирочной, что соответствует техническим требованиям газовых служб и нормам безопасности. Наличие гардеробной (6,55 м²) и кладовой (2,39 м²) решает вечную проблему хранения вещей, разгружая жилые комнаты от лишних шкафов.
Конструктив: надежность и тепло
В основе дома лежит силовой каркас из сухой строганной доски камерной сушки. Использование пиломатериала сечением 195х45, 145х45 и 95х45 мм гарантирует стабильность геометрии дома: его не «поведет» при усадке, что позволяет приступать к чистовой отделке сразу после возведения «коробки».
Проект адаптирован под климатические условия Московской области. «Пирог» утепления минеральной ватой выглядит убедительно:
- Цокольное и чердачное перекрытия – 200 мм. Это отсекает холод от земли и предотвращает теплопотери через крышу (куда уходит до 30% тепла).
- Наружные стены – 150 мм. Оптимальный минимум для средней полосы, который при желании можно усилить перекрестным утеплением.
Фундамент на железобетонных сваях – универсальное решение, подходящее для большинства типов грунтов, включая пучинистые. Это обеспечивает надежную опору и хорошую вентиляцию подпольного пространства, продлевая жизнь деревянным конструкциям.
Изюминка проекта: Второй свет
Главной фишкой интерьера является организация «второго света» в зоне кухни и гостиной. Отсутствие потолочного перекрытия в этой части дома и утепление непосредственно по скатам кровли кардинально меняет восприятие пространства. Высокие потолки, повторяющие угол наклона крыши, добавляют объема и света, превращая сравнительно небольшой по площади дом в просторный коттедж премиум-класса. Это решение требует качественного исполнения узлов утепления кровли, но визуальный эффект того стоит.

Резюме
Проект каркасного дома 108 м² – это пример рациональной архитектуры, где каждый квадратный метр работает на комфорт жильцов. Это идеальный вариант для тех, кто ищет альтернативу трехкомнатной квартире, но хочет получить преимущества загородной жизни: террасу, отсутствие соседей за стенкой и просторную гостиную с высоким потолком.