В этой статье мы разбираем дом площадью 100 кв. м, который доказывает: комфортное жилье не обязательно должно быть огромным. Узнайте, как на этой площади разместились три спальни, два санузла и просторная кухня-гостиная с террасой.

В мире частного домостроения золотым стандартом для семьи из 3-4 человек считается площадь около 100 квадратных метров. Это тот самый баланс, когда у каждого есть личное пространство, но вам не приходится переплачивать за отопление лишних «квадратов» и уборку пустующих комнат. Сегодня у нас на обзоре именно такой проект – функциональный дом площадью 104 м² с характером и стилем.
Внешний вид: игра фактур и контрастов
Первое, что бросается в глаза при взгляде на этот дом – это выверенный баланс материалов. Архитекторы ушли от скучных однотонных решений, предложив беспроигрышное сочетание.

Основная часть фасада выполнена в белой декоративной штукатурке. Это придает зданию легкость и визуально расширяет его границы. Однако, чтобы дом не выглядел слишком просто, в дизайн введены акцентные вставки из кирпича (или клинкерной плитки) «под старину» в красно-коричневых тонах с эффектом обжига.
Эти кирпичные вставки выполняют важную роль:
- Обрамляют входную группу, создавая приглашающий акцент.
- Выделяют оконные проемы, связывая их в единую композицию.
- Полностью закрывают зону террасы, делая её более уютной и камерной.
Завершает образ темно-серая подшивка свесов крыши и водосточная система в цвет кровли. Окна с ламинацией цвета «антрацит» подчеркивают современный стиль строения.
Конструктивные особенности: надежность и тепло
В основе этого проекта лежат проверенные временем и климатом решения.
- Стены. Дом спроектирован из газобетонных блоков. Это выбор №1 для современного частного строительства благодаря отличной теплоизоляции. Газобетон позволяет стенам «дышать», поддерживая здоровый микроклимат внутри, и при этом значительно снижает нагрузку на фундамент по сравнению с полнотелым кирпичом.
- Кровля. Здание венчает классическая вальмовая (четырехскатная) крыша. Такая конструкция считается одной из самых надежных: она отлично противостоит ветровым нагрузкам и эффективно отводит осадки.
- Покрытие кровли. В качестве кровельного материала выбрана металлочерепица темного оттенка. Это практичное, долговечное и легкое решение, которое гармонично сочетается с кирпичной кладкой фасада. Низкий угол наклона скатов делает силуэт дома приземистым и основательным, в стиле «домов прерий» или европейских бунгало.
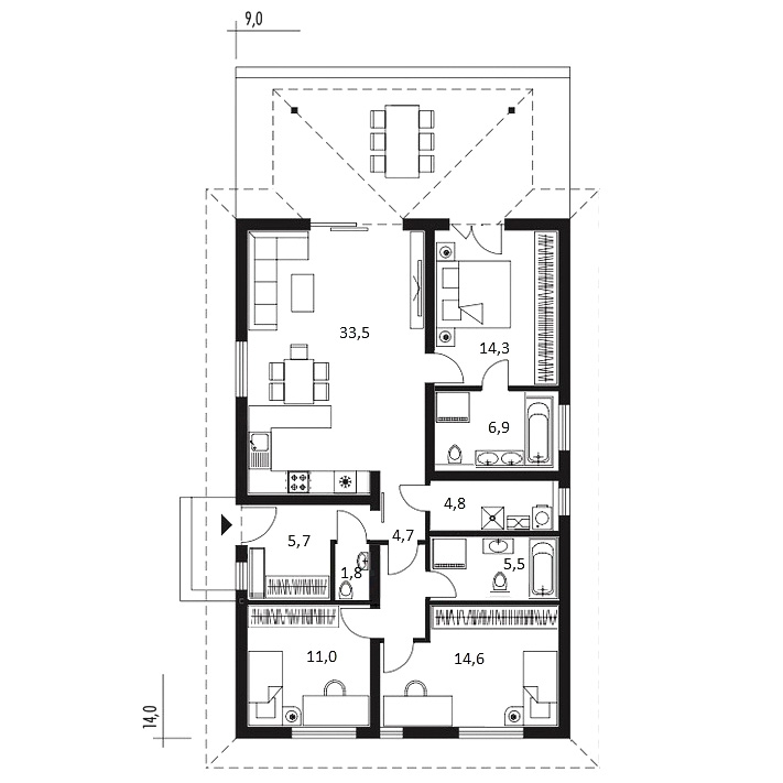
Продуманная планировка
Заходя внутрь, мы видим, что 104 квадратных метра использованы с максимальной пользой. Планировка четко зонирована на гостевую и приватную части.

Входная группа и технические зоны:
- Нас встречает тамбур-прихожая (5,7 м²), где достаточно места для установки большого шкафа-купе.
- Сразу у входа расположен гостевой санузел (1,8 м²), что очень гигиенично.
- Котельная/бойлерная вынесена в отдельное помещение, что исключает шум работающего оборудования в жилых комнатах.
Дневная зона – сердце дома: Центральное место занимает просторная кухня-гостиная площадью 33,5 м².
- Здесь предусмотрена ниша под П-образную кухню, которая плавно переходит в обеденную зону.
- Зона отдыха с диваном и ТВ расположена так, чтобы не мешать проходу.
- Главная фишка – выход на крытую террасу через широкие остекленные двери. Летом терраса становится продолжением гостиной, где можно устраивать ужины на свежем воздухе.
Приватная зона (спальни): Архитекторы предусмотрели три полноценные жилые комнаты:
- Мастер-спальня (14,3 м²) – с отдельной ванной комнатой, идеальна для родителей.
- Вторая спальня (14,6 м²) – самая большая по площади, отлично подойдет для детской на двоих или для подростка.
- Третья комната (11,0 м²) – может служить кабинетом или гостевой спальней.
Важно отметить наличие второго, большого ванной комнаты (6,9 м²) и дополнительного санузла с постирочной (5,5 м²). Два полноценных санузла плюс гостевой туалет на дом в 100 «квадратов» – это уровень комфорта бизнес-класса. Утренних очередей в ванную точно не будет.

Почему стоит выбрать этот проект?
Этот дом – отличный пример рационального подхода. Здесь нет длинных бесполезных коридоров, «съедающих» площадь. Простая форма пятна застройки (прямоугольник с небольшими выступами) делает строительство экономически выгодным, а четырехскатная крыша избавляет от необходимости обслуживать фронтоны.
Проект на 104 м² доказывает: счастье любит тишину, уют и грамотную планировку. Это дом, в котором хочется жить, растить детей и встречать гостей на красивой террасе.