В этом обзоре интересный проект компактного, но вместительного загородного жилья – одноэтажный каркасный дом 8х10 метров. Мы оцениваем грамотность зонирования, надежность свайного фундамента и теплоэффективность ограждающих конструкций с точки зрения архитектурных и строительных стандартов.
Современное загородное строительство неуклонно движется в сторону рационального использования каждого квадратного метра. Огромные особняки уступают место функциональным одноэтажным коттеджам, где продумана эргономика, а затраты на отопление сведены к минимуму. Сегодня на нашем архитектурно-строительном разборе – классический представитель современного прагматизма: каркасный дом с габаритами 8х10 метров и пристроенной террасой.

Почему для этого проекта выбран фундамент на забивных ж/б сваях?
Выбор фундамента – это отправная точка, определяющая долговечность всего строения. Для данного каркасного дома проектировщики заложили основание на железобетонных забивных сваях. Это технически обоснованное решение, которое мы полностью поддерживаем для домов деревянного каркасного типа.
Деревянный каркас обладает относительно небольшим весом (по сравнению с кирпичом или газобетоном), однако он чувствителен к пространственным деформациям. Забивные железобетонные сваи сечением 150х150 мм или 200х200 мм обеспечивают следующие преимущества:
- Опора на плотные слои грунта: Сваи забиваются ниже глубины сезонного промерзания (согласно СП 22.13330.2016 «Основания зданий и сооружений»), что исключает воздействие сил морозного пучения.
- Высокая несущая способность: Каждая свая способна нести нагрузку от 10 до 40 тонн в зависимости от типа грунта, что обеспечивает многократный запас прочности для легкого дома.
- Скорость монтажа и всесезонность: Устройство такого свайного поля занимает 1-2 дня, после чего можно сразу приступать к монтажу деревянного ростверка из бруса (обычно сечением 150х200 или 200х200 мм).
Каркас и теплоизоляция
Основой энергоэффективности данного строения является правильный пирог стены. Дом возводится по каркасной технологии с использованием минераловатного утеплителя.
Для того чтобы дом соответствовал требованиям СП 50.13330.2012 «Тепловая защита зданий», толщина теплоизоляционного слоя в наружных стенах для средней полосы должна составлять не менее 150-200 мм (в зависимости от плотности материала и региона), а в кровельном перекрытии – от 200 до 250 мм.
Критически важные слои правильного каркасного пирога:
- Внутренняя обшивка (ГКЛ, имитация бруса или вагонка).
- Пароизоляционная пленка (с обязательной проклейкой нахлестов бутилкаучуковыми лентами). Это предотвращает попадание влаги из помещения в утеплитель. Увлажнение минваты всего на 5% снижает ее теплоизоляционные свойства в два раза.
- Несущий силовой каркас (доска камерной сушки 50х150 мм или 50х200 мм) с заложенными враспор плитами каменной или минеральной ваты.
- Ветро-влагозащитная супердиффузионная мембрана. Она защищает базальтовое волокно от продувания и наружной влаги, но беспрепятственно выпускает пар наружу.
- Вентиляционный зазор (формируется контррейкой). Необходим для выветривания конденсата.
- Наружная отделка (в данном проекте – имитация бруса или сайдинг).
Оценка планировочных решений
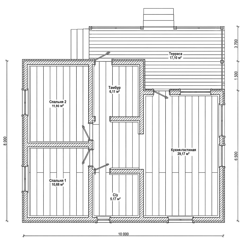
Перейдем к разбору внутреннего пространства. Общая площадь застройки составляет 80 кв.м., при этом отапливаемая (жилая) площадь – около 63 кв.м.

Планировка демонстрирует грамотное разделение на «грязную/проходную», «тихую» и «активную» зоны. Рассмотрим экспликацию помещений более детально:
| Помещение | Площадь (м²) | Архитектурная оценка |
| Тамбур / Прихожая | 6,11 | Отличная площадь. Выполняет роль теплового шлюза, отсекая холодный воздух с улицы (требование для домов постоянного проживания). Достаточно места для встроенного шкафа. |
| Кухня-гостиная | 29,17 | Сердце дома. Занимает почти половину теплового контура. Панорамное остекление наполняет пространство естественным светом (инсоляция в норме). Выход на террасу прямо из гостиной – золотой стандарт загородной жизни. |
| Спальня 1 | 10,68 | Компактная, но функциональная комната. Подойдет для детской или гостевой. Размещение правильной прямоугольной формы облегчает расстановку мебели. |
| Спальня 2 | 11,90 | Главная спальня. Окна выходят на сторону, противоположную террасе, что обеспечивает акустический комфорт. |
| Санузел | 5,17 | Оптимальный метраж для совмещенного санузла. Позволяет разместить ванную, унитаз, раковину и оставить место для бойлера, стиральной машины и узла ввода коммуникаций. |
| Терраса | 17,10 | Просторная зона отдыха под общей крышей. Защищена от осадков. Площадь позволяет поставить обеденный стол на 6-8 человек и зону барбекю (с соблюдением норм пожарной безопасности). |
Какие инженерные нюансы нужно учесть при реализации?
При детальном изучении планировки мы обращаем внимание на то, что санузел и зона кухни в гостиной имеют общую стену или находятся в непосредственной близости. Это грамотное решение инженера-проектировщика. Оно позволяет создать единый водопроводно-канализационный узел и обойтись одним фановым стояком.
Также рекомендуем на этапе сборки силового каркаса предусмотреть закладные детали под монтаж тяжелой мебели (кухонных шкафов, бойлера) и скрытую прокладку инженерных сетей (электрика обязательно в металлорукаве или негорючей гофре, согласно ПУЭ).
В целом, данный проект 8х10 является отличным примером сбалансированного жилья. Он лишен бесполезных транзитных зон (длинных коридоров), а каждый вложенный рубль работает на создание комфортной полезной площади.